
Interiér ve Vysokém Mýtě
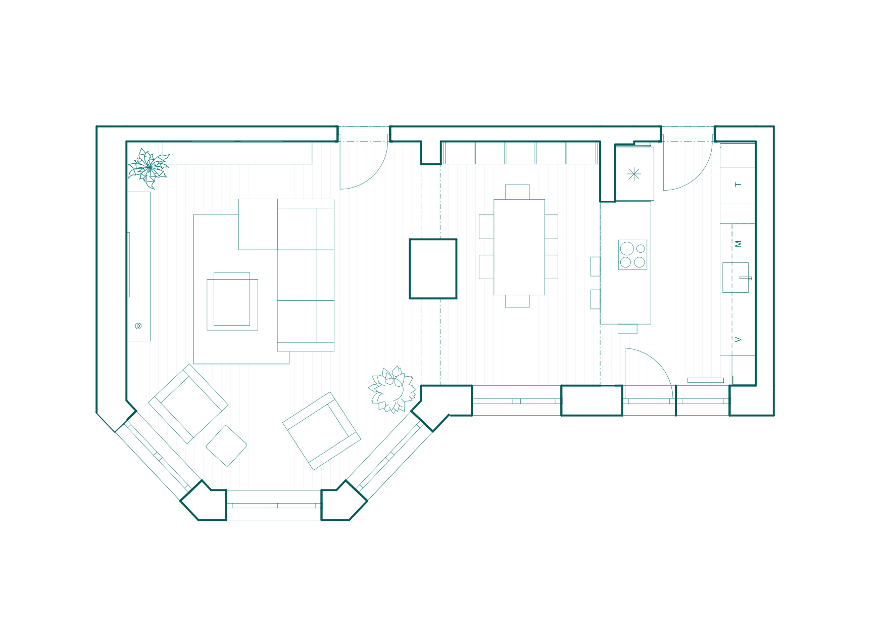
Pro rodinný dům ve Vysokém Mýtě jsme navrhovali interiér hlavního obytného prostoru s lehkými stavebními zásahy. Majitelé původně nepočítali s dispozičními úpravami. Dle svých slov ovšem nejvíce času tráví ve stísněné kuchyni. Navrhli jsme proto zbourání stěny mezi kuchyní a jídelnou, aby se prostor co nejvíce propojil.
Přáním klienta byl moderní vzdušný interiér, nenáročný na úklid a údržbu. Pro sjednocení prostoru je všude použita jednotná podlahová krytina. Interiér pracuje s bílou barvou, betonovou stěrkou a dřevěným dýhováním
Půdorys prostoru je členitý, pocitově rozdělený průvlaky a vertikálními podporami na část obývacího pokoje, jídelnu a kuchyň. V obývací části je sedací souprava doplněna minimalistickými skříňkami zavěšenými do stěny. Do výklenku v jídelně se podařilo umístit hravý policový systém knihovny. Kuchyň, která se zbouráním stěny stala plnohodnotnou součástí prostoru, dostala široký kuchyňský ostrůvek s barovým sezením, aby už žádná návštěva nemusela s kafem postávat u kuchyňské linky.
řešená plocha: 55 m²
status projektu: realizován
klient: soukromý
projekt: 2021
typ projektu: interiér
fotografie: Jiří a Tereza Rákosníkovi


Srovnání stavu před a po rekonstrukci







