
RD v Rychnově na Moravě
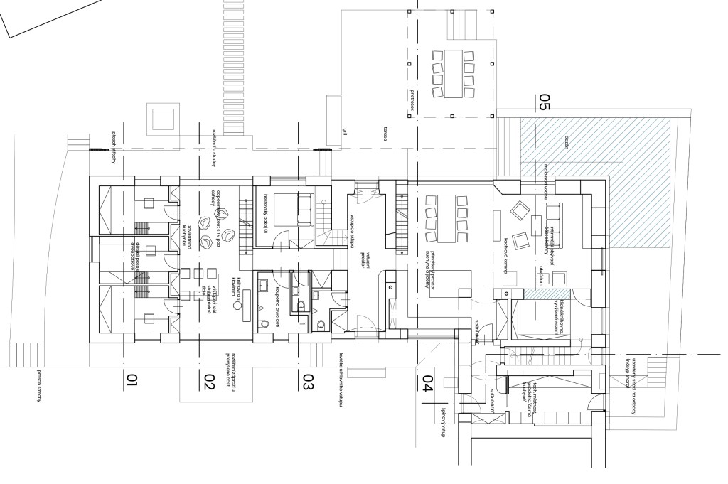
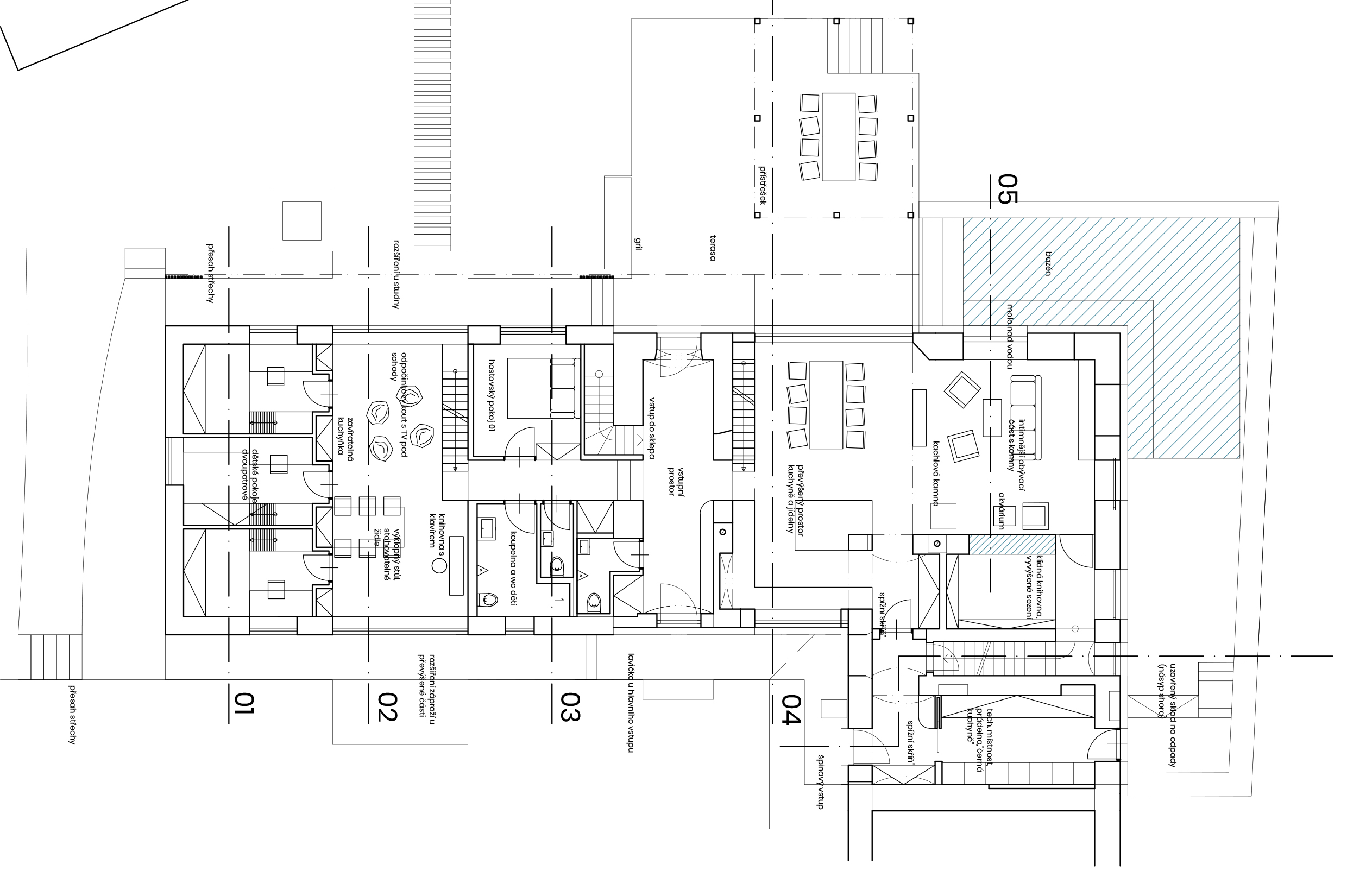
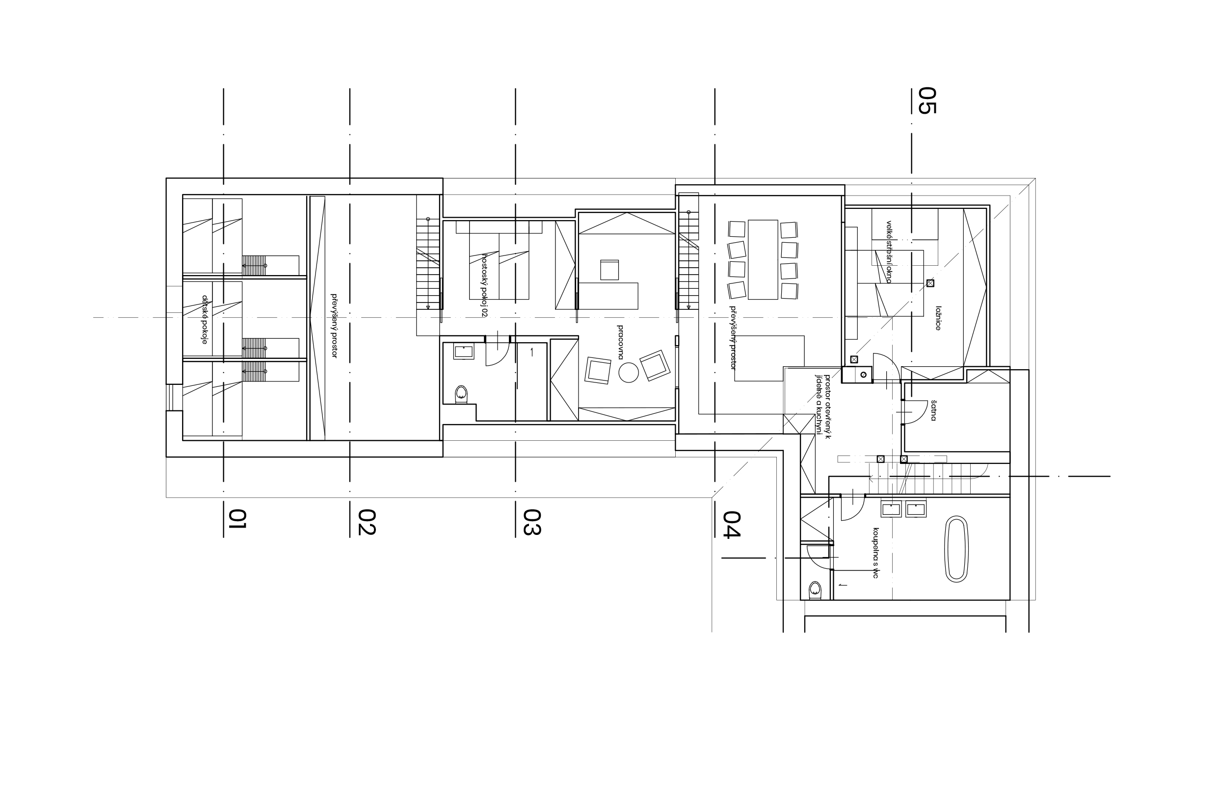
Rodinný dům je navržen jako částečná rekonstrukce původního stavení. Pozemek je svažitý se severní orientací a je stíněn lesem. Jeho hodnotou je klid a velká zahrada na západ od domu. Dům je rozdělen na „starou a novou“ část. Stará má tlusté kamenné zdi, a je zde pomocí bílé omítky, dřevěné podlahy, nebo pálené krytiny podtržen historický charakter. Nová část je navržena z dřevěných panelů, které jsou pohledové v interiéru a dřevo se propisuje také na fasádu a na střechu části. Každá z částí má svůj převýšený prostor do krovu. Ve staré je to společenská část – jídelna s kuchyní v návaznosti na obývací pokoj a v nové se jedná o společnou hernu a pracovnu dětí. Tyto převýšené části jsou maximálně propojeny se zahradou velkými prosklenými plochami.
Projekt byl zpracován v ateliéru City Upgrade.
zastavěná plocha: 252 m²
klient: soukromý
projekt: 2022
typ projektu: studie













