
Rodinný dům v Mnichovicích
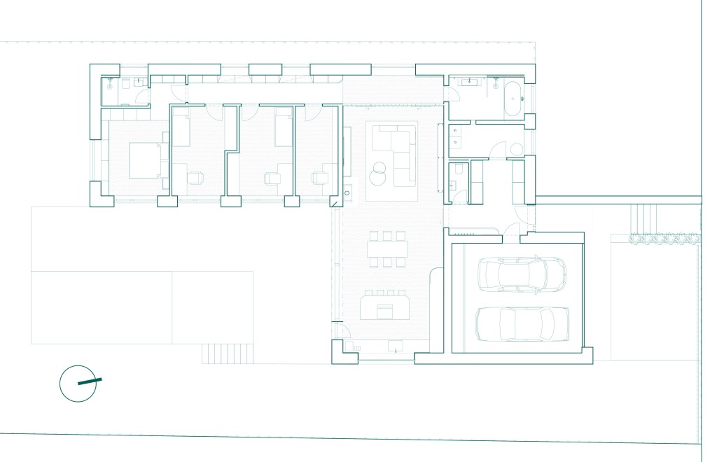
Rodinný dům je navržen na svažitý podlouhlý pozemek s výhledem do údolí. Hlavním prvkem návrhu je orientace pokojů do zahrady a k výhledu. Zároveň částečně zapuštěná hmota domu pomáhá přenést terénní rozdíl a vytváří příjemnou krytou terasu.
Na fasádu je použita kombinace světlé kletované omítky s dřevěným obkladem a oplechovaná římsa zelené ploché střechy.
zastavěná plocha: 233 m²
status projektu: realizuje se
klient: soukromý
projekt: 2022
typ projektu: studie + interiér

Pro RD jsme zpracovávali také studii interiéru. Návrh je laděný převážně do světlých odstínů. Je zde použito dubové podlahy z prken většího formátu, březové překližky na na vestavný nábytek a jemné laťování na zakulacených plochách. Strop je ponechán z pohledového betonu a stěny jsou bílé. Mimo obytné místnosti je použito lité teraco ve světle béžovém odstínu. Doplňky a světla jsou černá.













